Villa - Poreč (05083)
- Wohnfläche : 204 m2
- Grundstücksfläche : 338 m2
- Entfernung zum Zentrum : 6000 m
- Entfernung zum Meer : 3000 m
- Laden aussetzen
auf Anfrage
| Meerblick : | Ja | Etage : | n/a |
| Parkplatz : | Ja | Anzahl der Etagen : | 2 |
| Garage : | Nein | Anzahl der Schlafzimmer : | 4 |
| Keller : | Nein | Anzahl der Badezimmer : | 5 |
| Anbaumöglichkeit : | Nein | Baujahr : | 2023 |
| Energieeffizienz | Nicht bekannt |
GALLERIE
BESCHREIBUNG DER IMMOBILIE
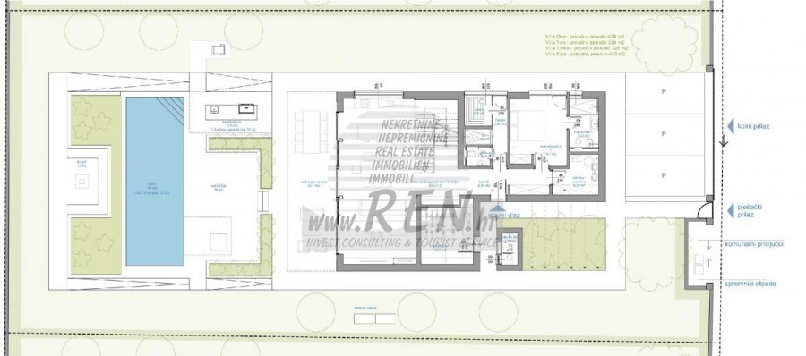
Der Villenkomplex befindet sich auf einer Fläche von 3730 m2. Es besteht aus 4 freistehenden, komplett möblierten und ausgestatteten Gebäuden mit Blick auf das offene Meer.
Bruttowohnfläche jedes Hauses: 270 m2
(es zählen nur geschlossene Flächen)
Netto-Innenwohnfläche: 204 m2
(geschlossener Teil)
Netto, offen überdacht und nicht überdacht: 310 m2
(Sonnenliege, Überdachung, Balkone, Wege, Feuerstelle, Dachterrasse, Außentreppe)
Parken: 3 Parkplätze (40 m2), jedes Haus.
Schwimmbad : 36 m2 Wasserfläche
Villa Parenzo eins - Grundstück 867 m2 - Grünfläche 388 m2
Energieklasse: A (20 kWh/m2 pro Jahr)
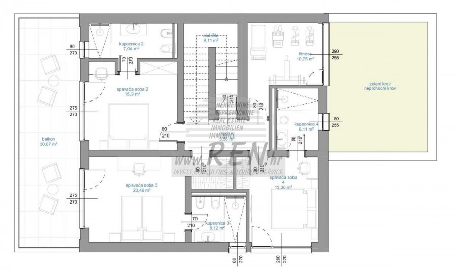
Grundriss: P+1, (Erdgeschoss + Obergeschoss)
Das Erdgeschoss besteht aus einer Eingangshalle, einer Treppe für den Zugang zum ersten Stock und der Dachterrasse, einem Wohnzimmer, einer Küche und einem Esszimmer, einem Schlafzimmer mit separatem Badezimmer, einer zusätzlichen Toilette, einem Badezimmer und einer Sauna. ein Technikraum mit Waschküche, ein Abstellraum und eine Außentoilette, die jeweils über einen separaten Eingang verfügen.
Im ersten Stock gibt es eine Treppe, einen Flur, drei Schlafzimmer mit separaten Badezimmern und einen Fitnessraum. Es gibt auch Zugang zur Dachterrasse, wo sich eine Außenbar, eine Liegewiese und eine Hydromassagewanne befinden.
In der Umgebung gibt es einen beheizten Außenpool, eine Liegewiese, eine überdachte Terrasse zum Essen, eine Überdachung mit Sommerküche und eine nicht überdachte Terrasse direkt neben dem Pool. Im unteren Teil des Hofes befindet sich eine Feuerstelle. Im Innenhof gibt es außerdem eine Designer-Außendusche mit Warmwasser und einem Bodensiphon.
Die gemietete Stromleistung beträgt 18,86 kW – dreiphasig, für jedes Haus.
Außenschreinereiarbeiten:
Großformatiger Aluminium-Schlosser. Aluminiumprofil - ALIPLAST.
Glas SUNGUARD SN 70/35 HT 6 mm gehärtet (70 % Lichtdurchlässigkeit, 35 % Solarfaktor).
1,0 W/m²K (U-Wert) + 16 mm Al schwarz, PU, Argon + FLOAT CLEAR, 6 mm gehärtet.
Profile mit unterbrochener Wärmebrücke, plastifiziert (RAL 7016).
Alle Türen, Fenster und Festpositionen werden im ALIPLAST SUPERIAL 800- und SUPERIAL-System hergestellt (Rahmentiefe 75 mm, Flügeltiefe 75 mm). Die Schiebepositionen werden im ULTRAGLIDE-System (Rahmentiefe 154 mm) hergestellt.
Der Wärmedurchgangskoeffizient liegt für alle Positionen unter 1,3 W/(m2*K).
Wanddämmung: Erdgeschosskombination aus Styrodur XPS 8 cm + Steinverkleidung 5 cm und Styropor EPS 10 cm, dort wo kein Stein vorhanden ist. Böden aus Styropor EPS 16 cm – weiße Fassade und Styropor 10 cm auf anthrazitfarbenen Teilen.
Handbehauener Kanfanar-Stein, 5 cm dick.
Heizung:
Vailant, externe Luft-Wasser-Wärmepumpe mit Stromantrieb – 10,3 kW Heizsystem und Warmwasseraufbereitung der Energieklasse A++, mit zusätzlichem Maschinenraum im Haus und einem 300-Liter-Boiler und Zirkulation. Fußbodenheizung in allen Räumen mit separaten Raum-/Badreglern. Mögliche Fernbedienung über Wi-Fi-Netzwerk.
Kühlen/Aufwärmen:
Es wurde ein Samsung Multi Split System mit zwei Außengeräten und 6 Innengeräten installiert. Ausgestattet mit der Möglichkeit, den Raum auf bis zu -30 °C Außentemperatur zu kühlen und zu heizen. Darüber hinaus verfügen die Geräte über die Wind-freeTM-Technologie für einen angenehmen Luftstrom. Mögliche Fernbedienung über Wi-Fi-Netzwerk.
Ausrüstung:
• Hochwertige Sanitärausstattung von Duravit, Wasserhähne von Grohe, Entwässerungssysteme von Geberit und Tece, Spülkästen von Grohe, begehbare Dusche.
• Hochwertige Keramik von den bekanntesten italienischen Herstellern (Graniti Fiandre, Panaria, Keope, Love). In den Bädern großformatige Keramik, bis zur Decke platziert.
• Eingebautes System zur Wasserenthärtung aus dem Wasserversorgungsnetz.
• Integriertes High-End-Ajax-Alarmsystem mit Bewegungssensor, Wasserleckdetektor und Feuermelder. Ausführung in Schwarz.
• DVC-Videoüberwachung mit 2 TB HDD-Recorder und 4 externen IP-Kameras mit 5 Mpx.
• Beleuchtung vom österreichischen Hersteller Eglo.
• Interne Schalter, Knöpfe und Steckdosen der italienischen Marke Bticino der Legrand-Gruppe.
• Eingebaute komplette Antennen- und Satellitenanlage für jeden Raum.
• Eingebaute zusätzliche WLAN-Signalverstärker im Haus und auf der Außenterrasse.
• Innentüren des bekannten italienischen Herstellers Braga mit verdeckten Scharnieren und Magnetschlössern, 44 mm breit, Bianco Matrix-Design mit schwarzen Prisma-Griffen.
• Video-Gegensprechanlage mit Steuerung zum Öffnen der Vordertür und elektronischer Steuerung. das Tor.
• Wallbox-Ladegerät zum Laden von Mercedes-Benz Elektroautos bis 22 kW
• Biokamin im Wohnzimmer
• Außenrinnen und Abflüsse auf Terrassen und Balkonen des deutschen Spitzenherstellers Aco
• Glasgeländer auf Balkon und Dachterrasse
Küche und Möbel
• Dan Kuchen Küche, Modell Silbermond in Anthrazit-Version – Küche und Insel, mit Sapienstone – Fior di Bosco Keramikarbeitsplatte 12 mm dick.
• Die Küche ist mit allen notwendigen Einbaugeräten von Bosch ausgestattet (Backofen, Mikrowelle, Herd, Geschirrspüler und kombinierter Kühlschrank).
• Auf der Insel ist auch ein Weinkühlschrank der Marke Candy installiert.
• Franke-Spüle, Grohe-Wasserhahn, Faber-Haube mit Belüftungskanal.
• Waschmaschine und Wäschetrockner Bosch, Serie 6, beide mit einem größeren Fassungsvermögen von 9 kg, in einem speziell dafür vorgesehenen Schrank im Technikraum untergebracht.
• Smart-TV in allen Zimmern, die Größe im Wohnzimmer beträgt 75'' QLED 4K und alle anderen Zimmer haben TV-Größen 55'' UHD LED 4K.
• Die Schlafzimmer sind mit Doppelbetten mit Premium-Matratzen der Linie Hespo Luxury Plus, Einbauschränken, einem Schreibtisch mit einem Kave Home-Sessel und Nachtlampen ausgestattet.
• In allen Räumen wurden Piere-Cardin-Teppiche verlegt, und ein Teil der Wände ist mit Lamelio Milo-Lamellen in Walnussfarbe und Wandtapeten der deutschen Marke Hohenberger verkleidet.
• Das Wohnzimmer ist mit hochwertigen italienischen Möbeln der Marken Tomasella, Sedit-Italia, Veneta Cucine ausgestattet und das Sofa ist von der Marke Natuzzi.
Sauna
• Maßgeschneiderte finnische Sauna, ausgekleidet mit Kyte Termo-Fichte und LED-Beleuchtung
• Professioneller Saunaofen EOS THERMAT BLACK 7,5 kW
• Externe Steuerelektronik HARVIA XENIO CX110
Innenhofteil der Villa:
Terrasse vor dem Wohnzimmer
• Bequemes Rattan-Sitzsofa, Modell Ando.
• Rattan-Esstisch Nora und 8 bequeme Stühle aus der Anabela-Serie.
Überdachung am Pool
• Eingebauter Kingstone-Gasgrill mit 4 14-kW-Brennern in der Außenbar.
• Zusätzlicher Ariston-WLAN-Boiler zur Warmwasserbereitung für die Außendusche.
• Getränkekühler in der Außenbar integriert.
• Spüle von Franke und Arbeitsplatte aus Laminam-Keramik.
• Zusätzliche Beleuchtung und 3 Barhocker.
Sonnenbank
• Liegewiese mit Sonnenliegen ausgestattet.
• Korta Marbella Außendusche aus Kanfanar-Stein.
Schwimmbad
• Skimmerbecken mit Duraston ausgekleidet, dekorativer Kühler – dunkelblaue Ausführung.
• Schwimmbadheizung über eine Wärmepumpe.
Feuerstelle
• Der Sitzbereich wird zusätzlich durch indirekte LED-Beleuchtung beleuchtet.
• Außenkamin mit Feuerraum und Grillmodul.
Dachterrasse
• Wellis Hydromassage-Badewanne, mit Abdeckung. Modell für 5 Personen und 42 Düsen, mit Erstchemie-Set und Wartungsausrüstung.
• Bar im Freien, ausgestattet mit Franke-Spüle und Laminam-Keramikarbeitsplatte.
• Zusätzliche LED-Beleuchtung und Barhocker.
• Bequeme Sitzgelegenheiten im Freien.
Mini-Kraftwerk
• Solarkraftwerk mit einer Leistung von 3,6 kW* (nachträglicher Einbau)
Vollständig gestalteter Gartengarten mit Bewässerungssystem und dekorativer Beleuchtung.
Anmerkung:
*Der Fitnessraum ist nicht mit Fitnessgeräten ausgestattet





























