Haus - Medulin (05309)
- Wohnfläche : 0 m2
- Grundstücksfläche : 810 m2
- Entfernung zum Zentrum : 1000 m
- Entfernung zum Meer : 800 m
- Laden aussetzen
400.000 €
| Meerblick : | Nein | Etage : | n/a |
| Parkplatz : | Ja | Anzahl der Etagen : | 2 |
| Garage : | Nein | Anzahl der Schlafzimmer : | 6 |
| Keller : | Nein | Anzahl der Badezimmer : | 4 |
| Anbaumöglichkeit : | Nein | Baujahr : | 2024 |
| Energieeffizienz | Nicht bekannt |
GALLERIE
BESCHREIBUNG DER IMMOBILIE
Medulin, Haus mit 3 separaten Wohnungen, neues Projekt im Bau.
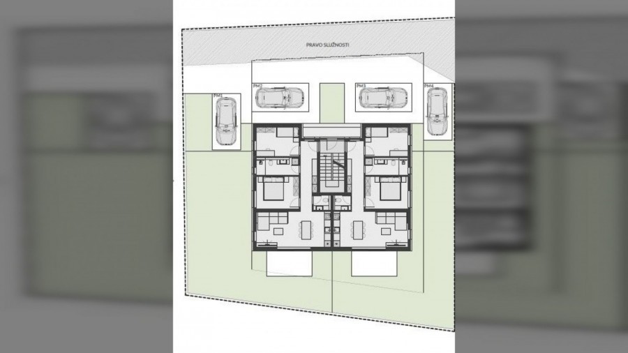
Diese interessante Immobilie befindet sich auf einem Grundstück von 810 m2 und besteht aus einem Erdgeschoss und einem Obergeschoss.
Im Erdgeschoss befinden sich 2 Wohnungen, jede Wohnung verfügt über einen Parkplatz:
Wohnung mit der Kennzeichnung „A“ mit einer Nettofläche von 58,11 m2 – Flur + Ankleidezimmer, zwei Schlafzimmer, Küche + Esszimmer + Wohnzimmer, Badezimmer, Abstellraum, Teil des Gartens von 110 m2.
Wohnung mit der Bezeichnung „B“ mit einer Nettofläche von 58,11 m2 – Flur + Ankleidezimmer, zwei Schlafzimmer, Küche + Esszimmer + Wohnzimmer, Badezimmer, Abstellraum, Teil des Gartens von 100 m2.
Es gibt 1 Wohnung im ersten Stock, es verfügt über 2 Parkplätze:
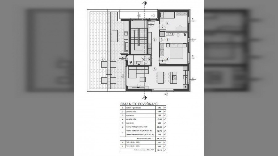
Wohnung mit der Kennzeichnung „C“ mit einer Nettofläche von 84,70 m2 – Flur + Ankleidezimmer, zwei Schlafzimmer, Küche + Esszimmer + Wohnzimmer, zwei Badezimmer und eine großzügige Terrasse.
Ideal für touristische Vermietung oder Familienunterkünfte.
Der Preis beträgt 400.000,00 € und ist für diesen Fertigstellungsgrad – Ziegel und Bau bis „unter dem Dach“ – auch nur so viel.





