Wohnung - Umag (05536)
- Wohnfläche : 92 m2
- Grundstücksfläche : 312 m2
- Entfernung zum Zentrum : 400 m
- Entfernung zum Meer : 600 m
- Laden aussetzen
723.276 €
| Meerblick : | Nein | Etage : | Erdgeschoss |
| Parkplatz : | Ja | Anzahl der Etagen : | 5 |
| Garage : | Ja | Anzahl der Schlafzimmer : | 2 |
| Keller : | Ja | Anzahl der Badezimmer : | 2 |
| Anbaumöglichkeit : | Nein | Baujahr : | 2026 |
| Energieeffizienz | Nicht bekannt |
GALLERIE
BESCHREIBUNG DER IMMOBILIE
Luxus Immobilien Istrien, Wohnung zum Verkauf im Zentrum von Umag
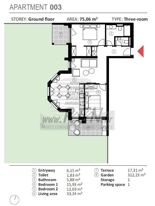
Wohnung 003 in Umag haben insgesamt 92,37 m2 + Garten, im Erdgeschoss gelegen, nur 5 min. (600m) vom Meer und schönen Stränden, 5 min. (400m) sind Sie vom Stadtzentrum Umag entfernt. Die Wohnung besteht aus Küche/Wohnzimmer/Esszimmer, 2 Schlafzimmer, Badezimmer, WC, Terrasse. Die Wohnung ist ausgestattet mit Klimaanlage, Aufzug, Parkplatz, Abstellraum ausgestattet.
Die Wohnung ist nur etwa 100 m vom Verkaufsladen, vom Restaurant 100 m, Marktplatz 1000 m, Arzt 500 m, Apotheke 500 m, vom Flughafen in Pula 70 km und vom Flughafen in Portorož 20 km, von der Marine Umag 300 m, und von dem Aquapark (Istralandia) 10 km.
Für weitere Auskünfte stehen wir Ihnen gerne zur Verfügung.






